Sidebar

  • 5 month(s) ago
  • 601 views

The Beach One

Sal Rei, Praia Cabral, Sal Rei, 5110, Ilha de Boa VIsta

Description

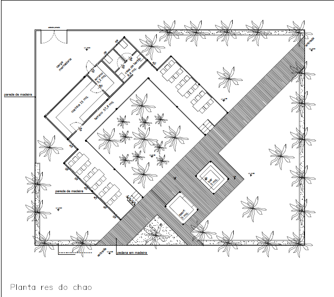
Seafront concession with fully approved project for the construction of a Beach Bar and Maritime Services in Praia Cabral, Sal Rei – Boa Vista, Cape Verde. A rare investment opportunity, ready for immediate development, located in one of the most promising and fast-growing coastal areas of the island Capo Verde.

 

 

For sale: Seafront concession with fully approved project for the construction of a Beach Bar and Maritime Services in Praia Cabral, Sal Rei – Boa Vista, Cape Verde.

A rare investment opportunity, ready for immediate development, located in one of the most promising and fast-growing coastal areas of the island.

 

The approved project includes:

 

  • Beach Bar & Lounge with ocean view

  • Covered terraces and chill-out areas

  • Private gazebos

  • Snack/restaurant area

  • Space for maritime activities (SUP, kayaking, snorkeling, surfing)

  • Wooden decking pathways and landscaped green areas

  • Storage rooms and sanitary facilities

 

The concession is already authorised, which means no bureaucratic delays and the possibility to start construction immediately. Praia Cabral is one of the most attractive zones of Sal Rei, with high tourist traffic and several hotels and residences nearby.

 

beach bar Boa Vista, commercial activity Cape Verde, Praia Cabral concession for sale, Cape Verde investment opportunity, beachfront business Boa Vista, maritime services Cape Verde, tourism investment Cape Verde.

 

 Tags

 Share

Facebook   Tweet

 Features

  Request more Details

 
 

Looking for a property in Cape Verde?

Fill in our form and get free advice from a local expert. We'll send you tailored property proposals based on your preferences.

Get Property Advice

Own a property in Cape Verde?

Want to sell or rent it out? Submit your property to our database and let us help you promote it.

List Your Property

THE BEST DEALS CHOSEN FOR YOU!